1. Segurança
Pensando sempre na segurança da negociação imobiliária, a Souza Gomes não trabalha com imóveis sem documentos e com impedimentos.
Sempre no intuito de padronizar, gerar processos, velocidade, diminuir problemas e sermos sempre corretos e assertivos, seguimos uma sequência no procedimento de venda, centralizado na secretaria de vendas.
Então, a proposta pode ser feita sem problemas.
2. Confeccionando a proposta
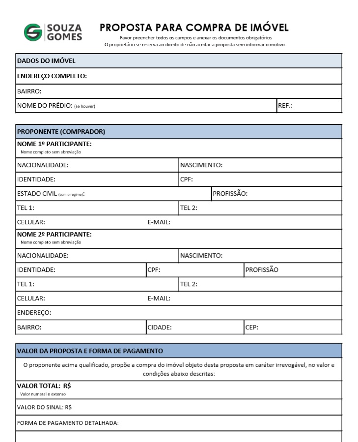
A proposta está em anexo ao final deste manual
Formulação da proposta que deve ser SEMPRE por escrito, na ficha própria, via whatsapp, via email contendo os requisitos básicos da proposta.
Campos mínimos: nome completo, CPF, endereço do imóvel, valor proposto e descrição clara da forma de pagamento proposta, esse documento deverá ser impresso e entregue ao responsável.
- Empreendimento ou endereço:
- Unidade ou ID:
- Proponentes: NOME COMPLETO, CPF, E-MAIL:
- Valor total da Proposta:
- Forma de pagamento detalhada:
No contrato: R$
Parcelas: xxx de R$
Escritura ou Financiamento: R$
Observações:
A proposta deve ser entregue e apresentada para o Ricardo ou quando estiver com ausência de férias, para o Victor, ou Diogo, o qual vai escolher pela sequência da negociação e dar os próximos passos.
Neste momento, nenhuma outra proposta pode ser feita até o final desta negociação. Nos casos de proposta de empreendimentos, sobretudo exclusivos, as propostas devem ser direcionadas diretamente ao Ricardo.
3. Proposta em mãos
Após receber a proposta, o corretor deverá preencher os dados no CRM (Robust) bem como cadastrar a proposta no sistema no referido imóvel.
Apresentação da proposta, formulário preenchido e assinado.
4. Atenção ao CRM
Observar no CRM se está com todos os dados constantes na proposta e imóveis demonstrados com todas as informações.
Após a conferência, o responsável fará a conferência da proposta no CRM, lembrando que o não preenchimento adequado no sistema, acarretará a redução em 50% na comissão.
5. Como o imóvel com proposta aparece no site
Não colocaremos os imóveis com proposta em modo invisível no site, isso gera confusão, esquecimento e diminui nosso engajamento online.
Sempre que um imóvel estiver sendo negociado, seja de venda ou de aluguel, isso estará informado no site através de uma tag (Imóvel em negociação) assim o cliente entende que pode ver, que pode entrar em uma fila, mas não que o imóvel sumiu e depois voltou por acaso. Precisamos ganhar tempo com eficiência.
As propostas devem ser marcadas e os andamentos preenchidos como sempre.
6. Fechamento
Como regra geral, a proposta fica com o Ricardo e ele irá direcionar o fechamento.
Os próximos passos até a assinatura definitiva são decididos caso a caso, SEMPRE com a ciência prévia de alguém da gerência ou diretoria.
Todos os procedimentos de vendas dependem de análise de documentação, aprovação de crédito, contrato bem feito e tranquilidade. Mesmo demandando agilidade, temos a certeza que de nada adianta uma venda malfeita. Por isso, tudo deve ser feito dentro das normas com a devida cautela e organização.
Todo andamento da proposta deve constar no sistema para conhecimento de todos pois todos os envolvidos (opcionista, diretoria e vendedor) recebem notificações de cada andamento pelo Robust.
7. E depois?
É repassado para a Secretaria de Vendas para solicitar documentos, certidões, etc.
Comentários
0 comentário
Por favor, entre para comentar.